ICE documents show plans for proposed immigrant detention "mega-center" in Social Circle
Social Circle officials have shared new documents from U.S. Immigration and Customs Enforcement detailing the plans to create an immigrant detention center within the city's limits.
In the documents, officials with the Department of Homeland Security state plans to "implement a new detention model by the end of Fiscal Year 2026," which involves the creation of large-scale "hubs" across the country that would hold thousands of detainees.
The document release comes after Social Circle leaders met with DHS officials earlier this week to discuss the agency's plan to turn a warehouse it recently purchased in the city into one of those "mega centers."
In the "Ice Detention Reengineering Initiative" document, the agency said it plans to reduce the total number of facilities from hundreds to around 34 while increasing the total bed capacity.
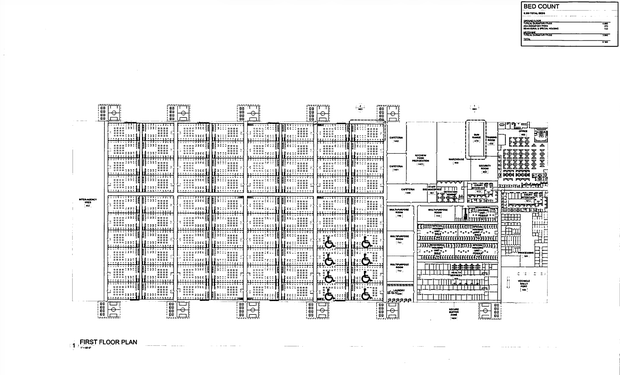
"The facility in Social Circle is expected to house anywhere from 7,500 to 10,000 detainees and will be constructed using a modular design so that capacity can be scaled up or down as needed," the city posted on Facebook on Wednesday.
Currently, no construction contracts have been officially awarded for the facility on Hightower Trail, but authorities say one should be awarded within the next week, if it is not delayed by the ongoing government shutdown.
Once construction has begun, the agency estimates to begin accepting detainees sometime between mid-May and June, and is expected to employ 2,000 to 2,500 staff.
The document says detainees will stay in the "mega-centers" for around 60 days. "Processing sites," like the one expected to be in Oakwood, Georgia, will have detainees stay some time between three and seven days.
The documents show that the facility will include holding areas, gyms, recreational spaces, cafeterias, a gun range, and other services.
Concerns over straining infrastructure
In an infrastructure analysis provided to the city by DHS officials, the agency says that the detention facility will be designed "to not affect the existing infrastructure adversely in any way."
"The design currently includes on sit mitigation strategies for wastewater treatment. Additional contingencies are in place if required due to non-engineering circumstances," the document reads.
ICE officials also claim the economic benefits of the facility will help Social Circle complete the construction of another wastewater treatment plant that was already planned for industrial growth.
City leaders have consistently expressed concerns over how the facility may strain its services, pointing to the fact that it would nearly triple the area's population when fully up and running.
"The City's concerns regarding water and sewer infrastructure have not been addressed to our satisfaction. We continue to have more questions than answers," the city wrote. "DHS referenced a wastewater analysis to support its claims of available capacity; however, a portion of that capacity was attributed to the A. Scott Emmons Treatment Facility. This treatment facility is not owned by the City of Social Circle, is not located within the city limits, is in a different county, and does not connect to the City's utility system or this building."
Social Circle officials also criticized the agency's plan for the water supply, saying a "cistern-based" approach, where tanks are filled during off-hours, would not offset the increasing demand from the facility.
"To be clear, the City has repeatedly communicated that it does not have the capacity or resources to accommodate this demand, and no proposal presented to date has demonstrated otherwise," they wrote.
The nationwide detention center plan is estimated to cost $38.3 billion, which would be funded through Congress's allocation of funds via the One Big Beautiful Bill Act.
More than 75,000 immigrants were being detained by ICE as of mid-January, up from 40,000 when Trump took office a year earlier, according to federal data released earlier in February.
The Associated Press contributed to this report.

